
Duality - Academic
Whitney Hamaker, UC
Spring 2023
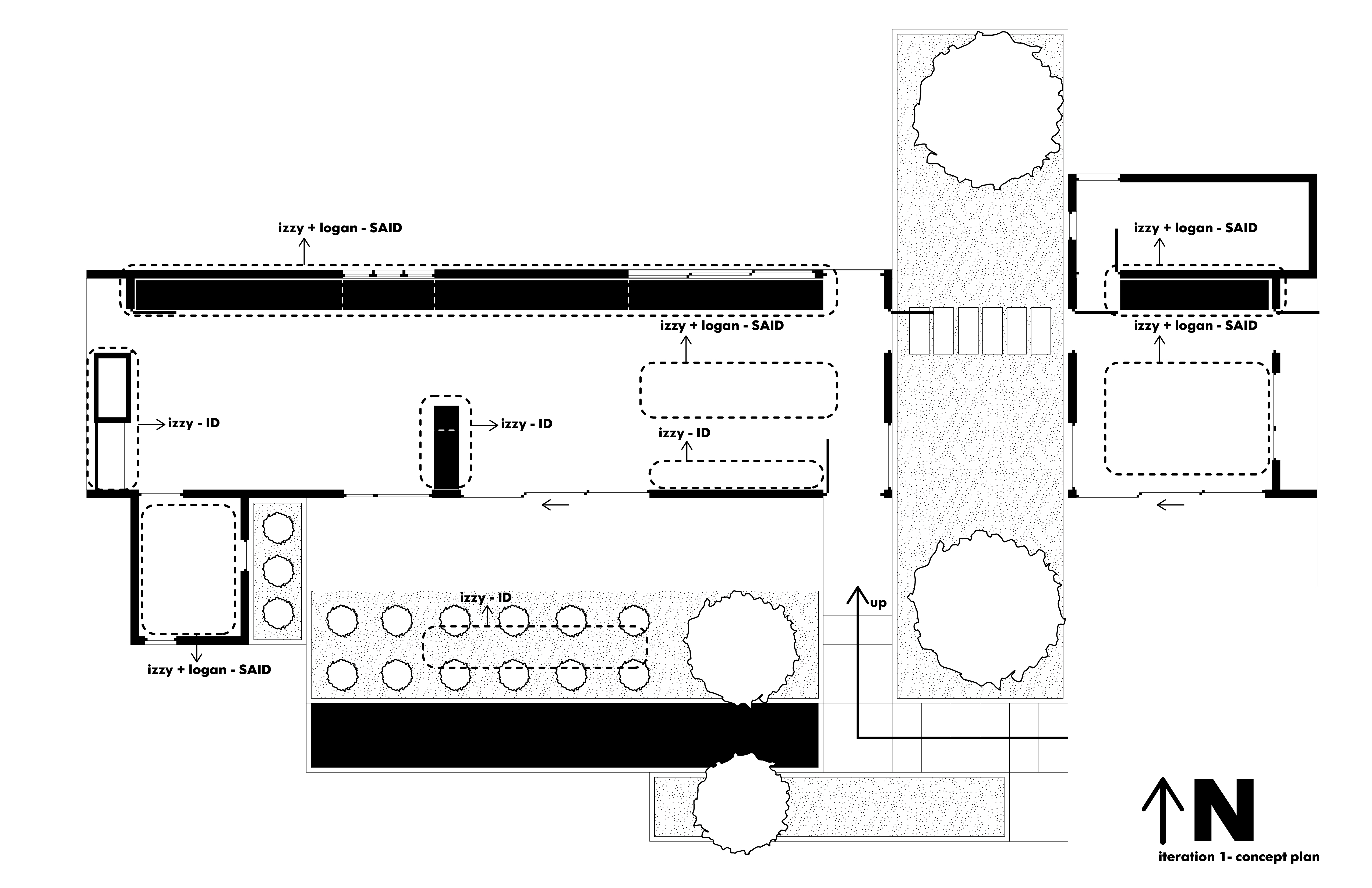
Duality, an instance of opposition or contrast between two concepts or two aspects of something.
That was our main intent when starting this project. With the technology of CLT, Izzy Zalat (ID) and I attempted to create a complimentary piece of furniture with ID that flows along side my architecture; however, we also wanted to explore moments of reflection throughout the homeroom and deeper reflections through our client/user, using materials, sight lines, circulation and moments of reflections.
The Case Study Redux has COVID-19 in mind. Our client has been extremely terrified and has gone a bit mad from spending too much time indoors during the pandemic, and he’s requested a case study home.
Whitney Hamaker, UC
Spring 2023
Duality, an instance of opposition or contrast between two concepts or two aspects of something.
That was our main intent when starting this project. With the technology of CLT, Izzy Zalat (ID) and I attempted to create a complimentary piece of furniture with ID that flows along side my architecture; however, we also wanted to explore moments of reflection throughout the homeroom and deeper reflections through our client/user, using materials, sight lines, circulation and moments of reflections.
The Case Study Redux has COVID-19 in mind. Our client has been extremely terrified and has gone a bit mad from spending too much time indoors during the pandemic, and he’s requested a case study home.













Logan Williams Design, 2024.