Liberty Park – Academic
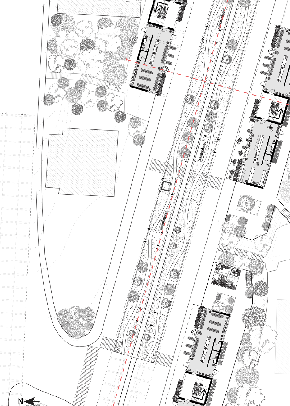
Liberty Park is an urban revitalization of Liberty Street, that stitches the divide between Over-the-Rhine by creating a diverse and inclusive environment, that is walkable, livable and workable.
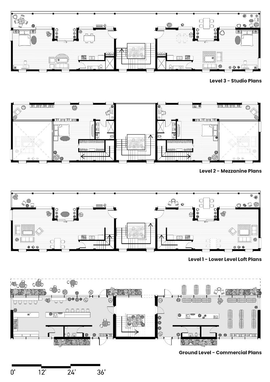
Income-based, mixed use apartments, with adaptable commercial spaces, infill the previous existing buildings that were torn down to expand Liberty St. in the past.
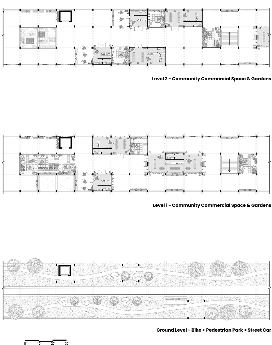
To condense the urban environment, we have transformed Liberty Street into an interiorized urban park, directly in the center of Liberty St. A timber/ CLT community lead open markert for selling goods and services benefits the local community by being accessible and offering local competition at an affordable cost.
In addition, we are proposing that Liberty St. be split into two one-way roads to reintroduce the street car for public transportation.










